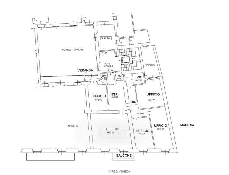
Ufficio in affitto Corso Venezia 6, Milano
Salva
Casa.it
1/37
  • Street View
  • Map