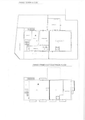
Ufficio in vendita Via Nazario Sauro , Senago
Salva
Casa.it
1/31
  • Street View
  • Map