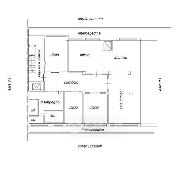
Ufficio in vendita Corso Carlo e Nello Rosselli 68, Torino
Salva
Casa.it
1/14
  • Street View
  • Map