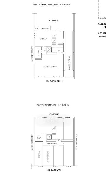
Ufficio in vendita Via Evangelista Torricelli 58, Torino
Salva
Casa.it
1/29
  • Street View
  • Map