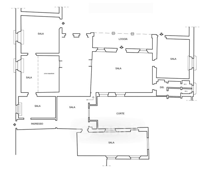
Ufficio in affitto Via del Castellaccio , Firenze
Salva
Casa.it
1/16
  • Street View
  • Map