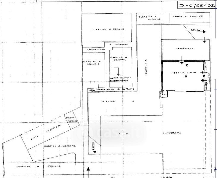
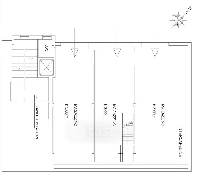
Ufficio in affitto Via Brunetto Latini , Firenze
Salva
Casa.it
1/11
  • Street View
  • Map