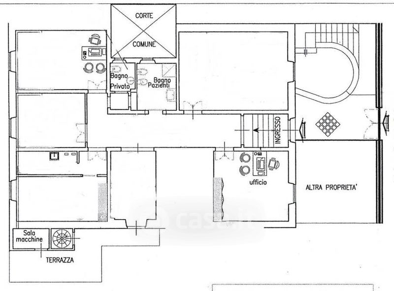
Ufficio in affitto Via Scipione Ammirato , Firenze
Salva
Casa.it
1/6
  • Street View
  • Map