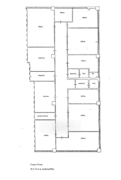
Ufficio in affitto Via Gaetano Luporini , Lucca
Salva
Casa.it
1/13
  • Street View
  • Map