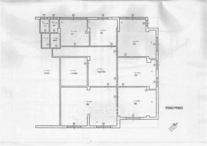
Ufficio in affitto Viale Castruccio Castracani , Lucca
Salva
Casa.it
1/21
  • Street View
  • Map