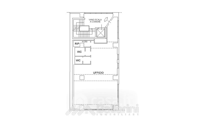
Ufficio in vendita Via Luciano Lama , Sesto Fiorentino
Salva
Casa.it
1/15
  • Street View
  • Map