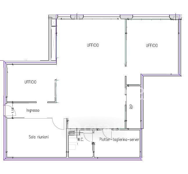
Ufficio in vendita Via Santa Caterina , Arco
Salva
Casa.it
1/4
  • Street View
  • Map