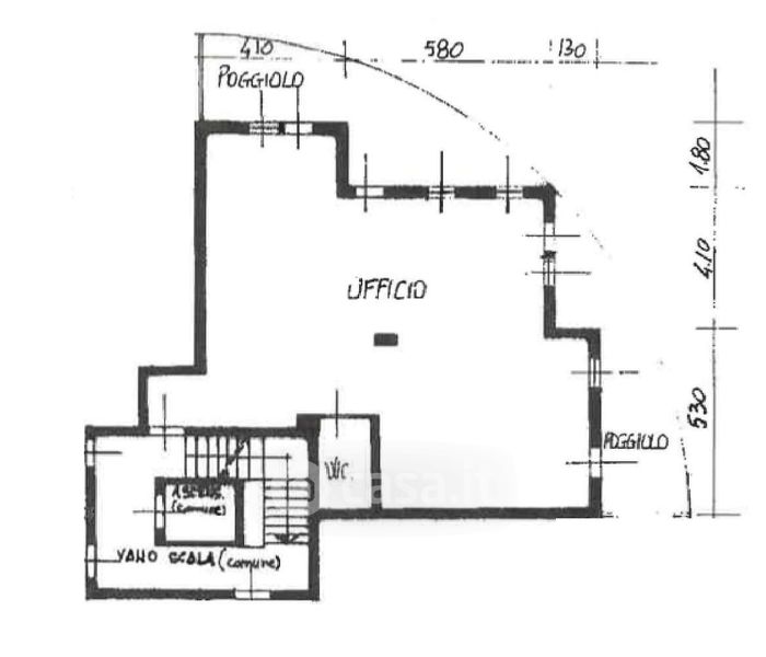
Ufficio in vendita Via Bruno de Finetti , Trento
Salva
Casa.it
1/6
  • Street View
  • Map