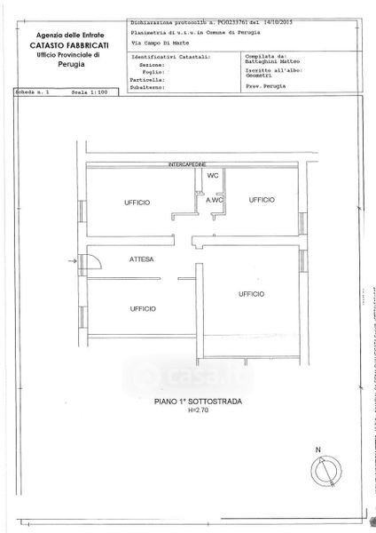
Ufficio in vendita Via Campo di Marte , Perugia
Salva
Casa.it
1/24
  • Street View
  • Map