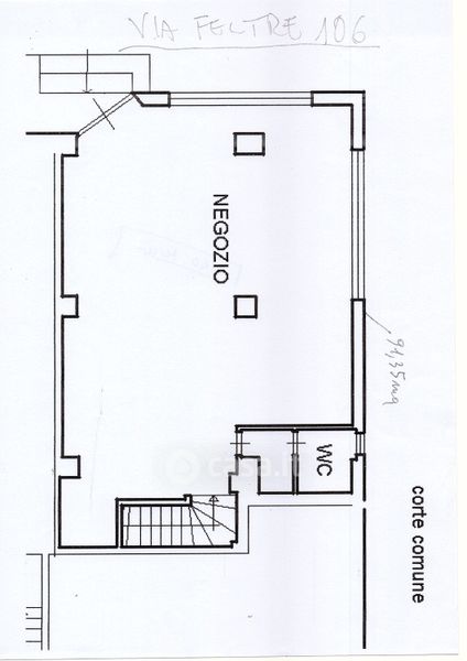
Ufficio in vendita Via Feltre 106, Belluno
Salva
Casa.it
1/6
  • Street View
  • Map