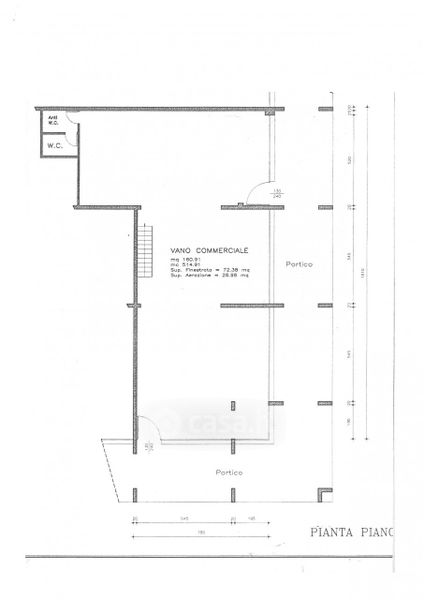
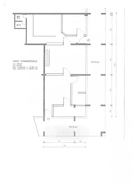
Ufficio in vendita Via Giovanni XXIII , Este
Salva
Casa.it
1/16
  • Street View
  • Map