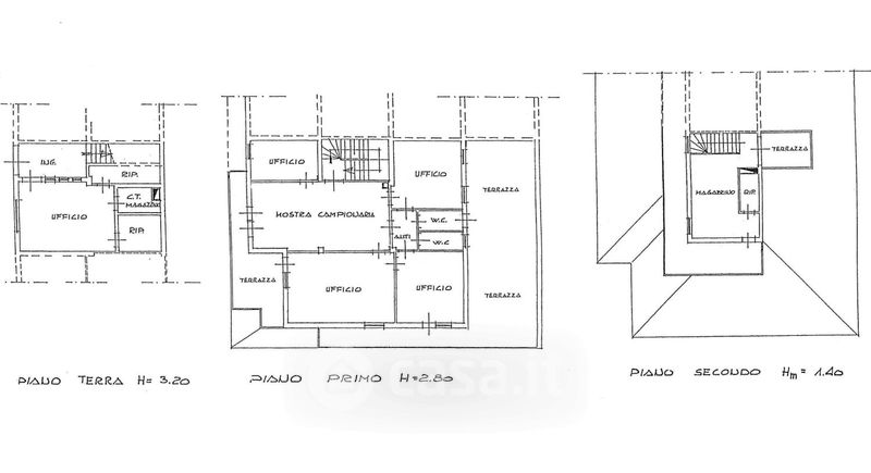
Ufficio in vendita Via Enrico Fermi , Mareno di Piave
Salva
Casa.it
1/25
  • Street View
  • Map