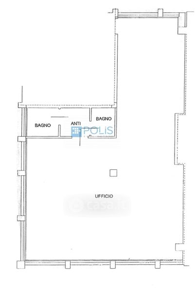
Ufficio in affitto Corso Stati Uniti , Padova
Salva
Casa.it
1/14
  • Street View
  • Map