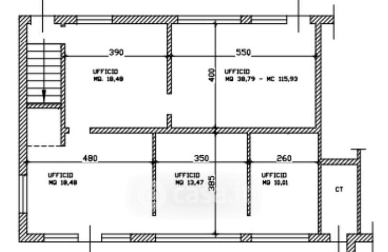
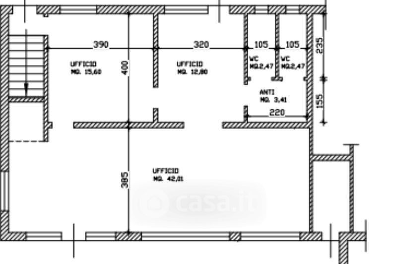
Ufficio in vendita Via Triestina , Venezia
Salva
Casa.it
1/16
  • Street View
  • Map