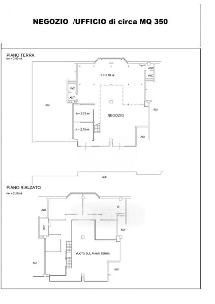
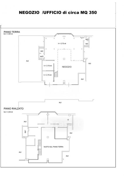
Ufficio in affitto Via Divisione Folgore , Vicenza
Salva
Casa.it
1/26
  • Street View
  • Map