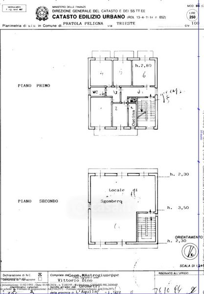
Villa in vendita Via Trieste , Pratola Peligna
Salva
Casa.it
1/37
  • Street View
  • Map