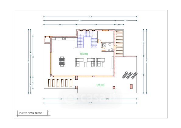
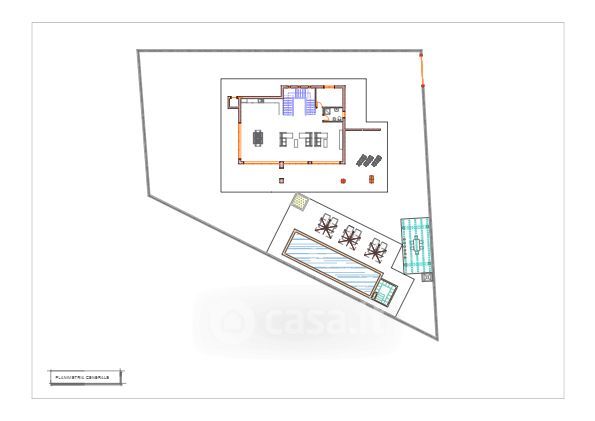
Villa in vendita snc , Drapia
Salva
Casa.it
1/22
  • Street View
  • Map