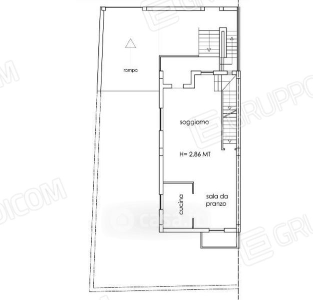
Villa in vendita Via dei Sanniti , Lamezia Terme
Salva
Casa.it
1/37
  • Street View
  • Map