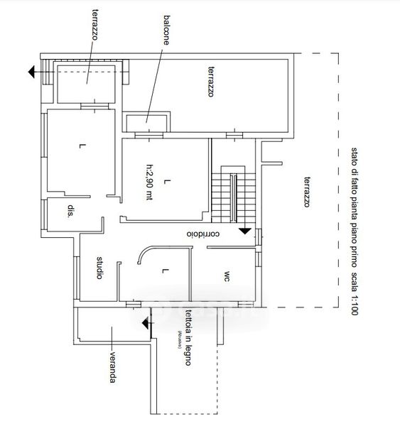
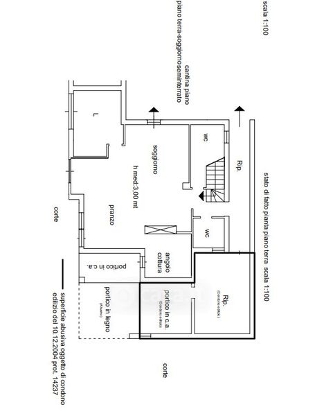
Villa in vendita Via Vingiolo , Praia a Mare
Salva
Casa.it
1/40
  • Street View
  • Map