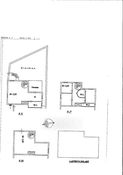
Villa in vendita Via Provinciale Montagna Spaccata , Napoli
Salva
Casa.it
1/50
  • Street View
  • Map