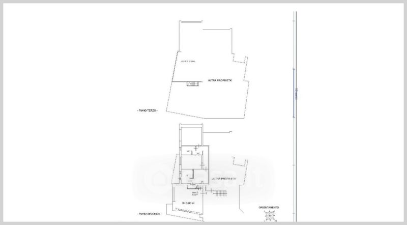
Villa in vendita Via Nazionale , Pietrelcina
Salva
Casa.it
1/32
  • Street View
  • Map