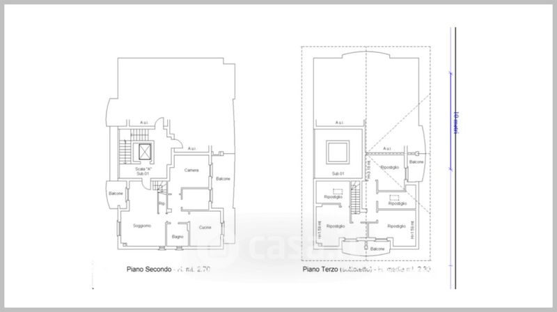
Villa in vendita Via Ercole Cantone , Pomigliano d'Arco
Salva
Casa.it
1/29
  • Street View
  • Map