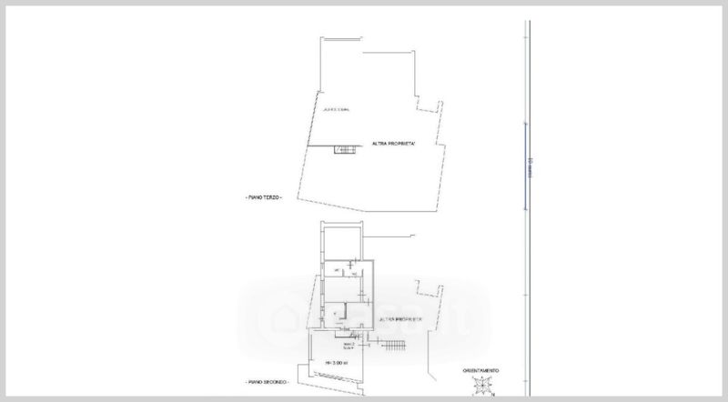
Villa in vendita Via Grande Ufficiale Domenico Ocone , Ponte
Salva
Casa.it
1/32
  • Street View
  • Map