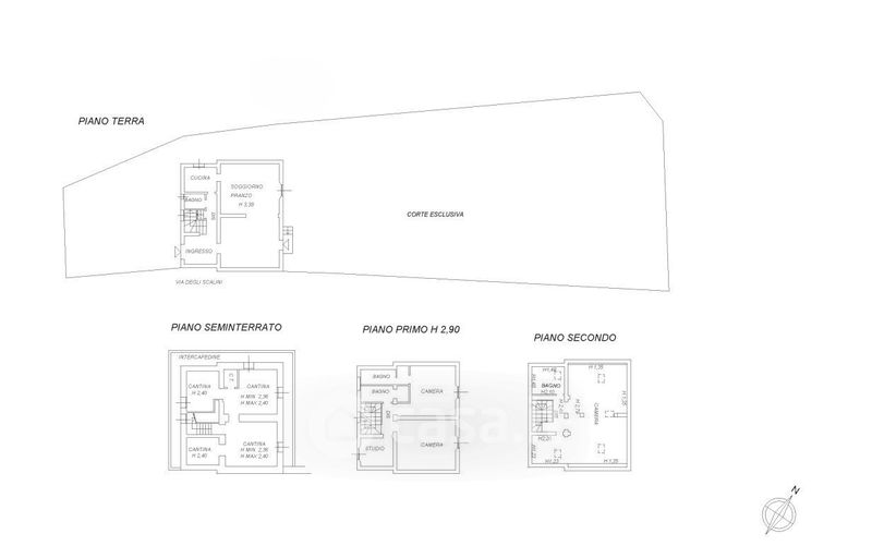
Villa in vendita Via degli Scalini , Bologna
Salva
Casa.it
1/30
  • Street View
  • Map