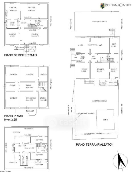
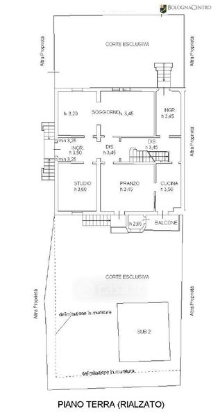
Villa in vendita Via Andrea Costa , Bologna
Salva
Casa.it
1/14
  • Street View
  • Map