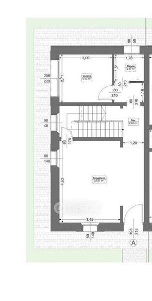
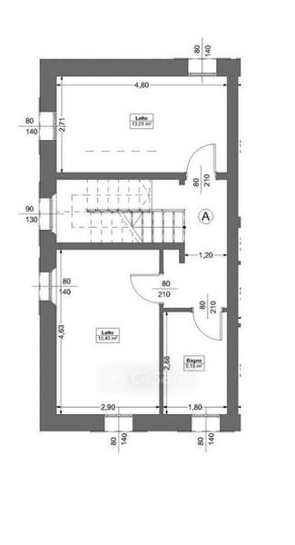
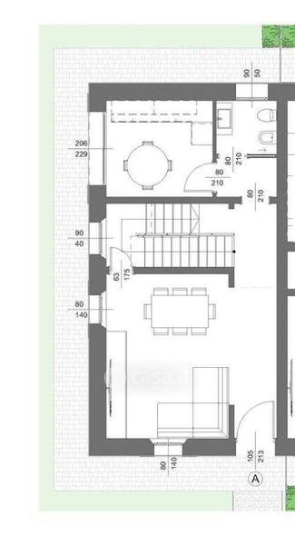
Villa in vendita Via Cavata 20, Carpi
Salva
Casa.it
1/14
  • Street View
  • Map