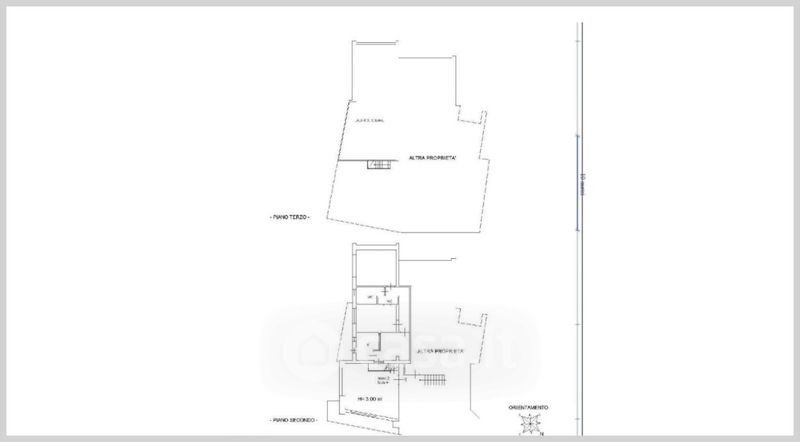
Villa in vendita Via Carpineta , Castel d'Aiano
Salva
Casa.it
1/37
  • Street View
  • Map