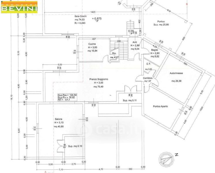
Villa in vendita Via Carlo Boni 15, Castelnuovo Rangone
Salva
Casa.it
1/40
  • Street View
  • Map