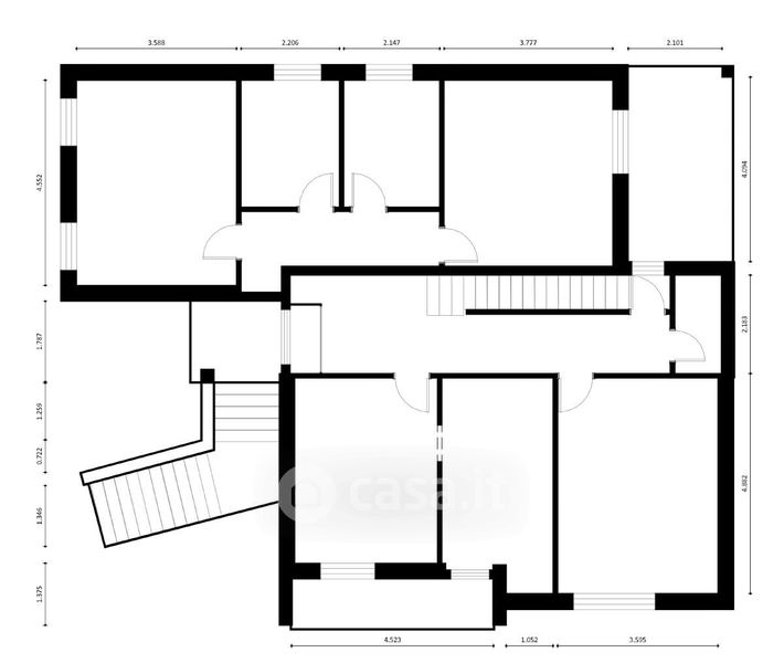
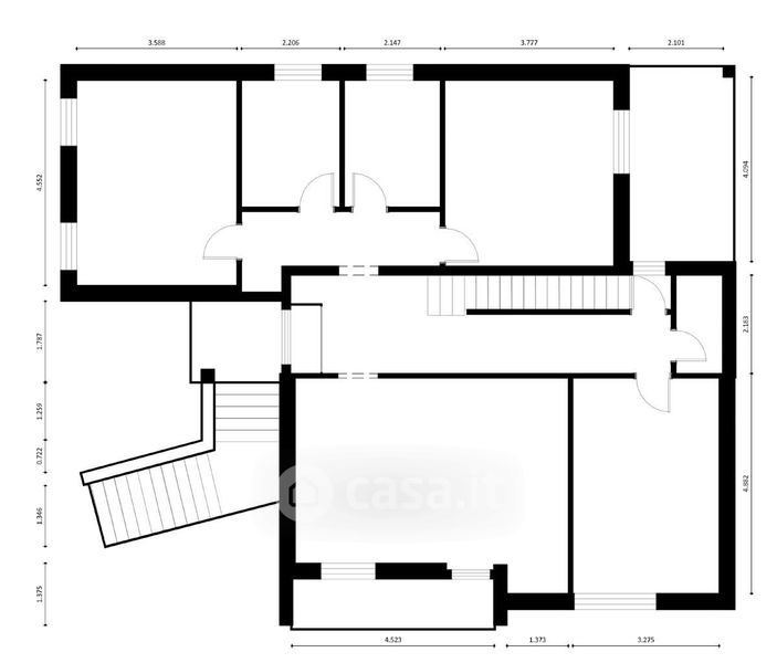
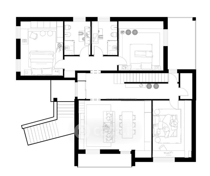
Villa in vendita Via Pietro Mascagni 6 A, Colorno
Salva
Casa.it
1/18
  • Street View
  • Map