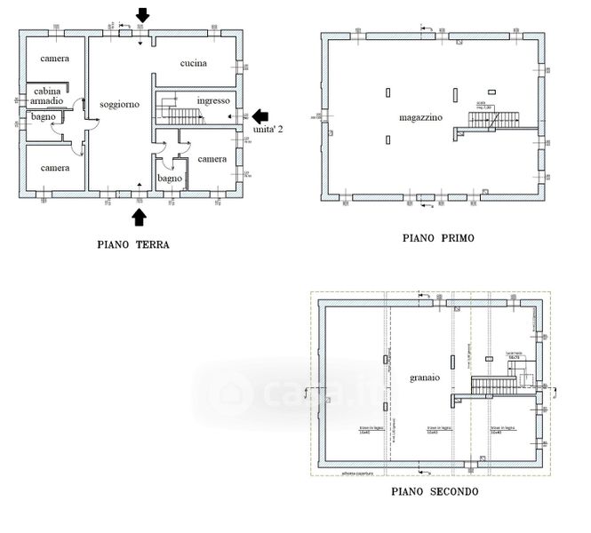
Villa in vendita Via Fornace 1596, Crevalcore
Salva
Casa.it
1/38
  • Street View
  • Map