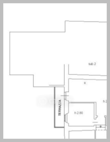
Villa in vendita Via Ada Corbellini , Felino
Salva
Contatta l'inserzionista
Casa.it