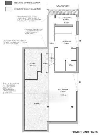
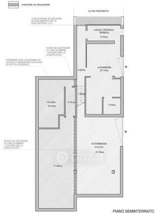
Villa in vendita Via Mario Zanatta , Ferrara
Salva
Casa.it
1/28
  • Street View
  • Map