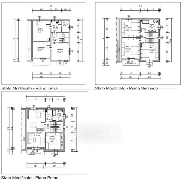
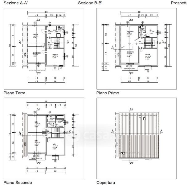
Villa in vendita Via Giovanni Pascoli 3, Guastalla
Salva
Casa.it
1/39
  • Street View
  • Map