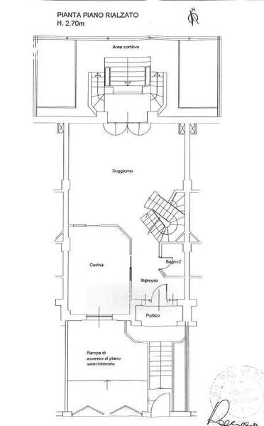
Villa in vendita Via 36 Reggimento Pistoia , Modena
Salva
Casa.it
1/42
  • Street View
  • Map