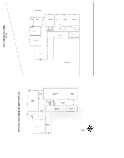
Villa in vendita Strada Martinella , Parma
Salva
Casa.it
1/78
  • Street View
  • Map