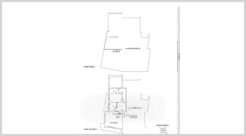
Villa in vendita Stradello Perizzi , Parma
Salva
Casa.it
1/32
  • Street View
  • Map