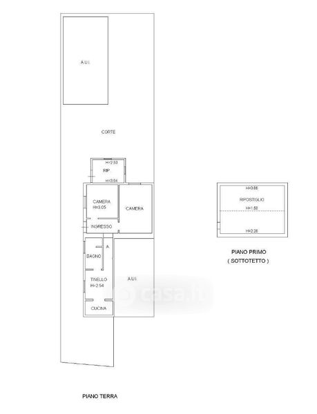
Villa in vendita Via Pisignano , Rimini
Salva
Casa.it
1/12
  • Street View
  • Map