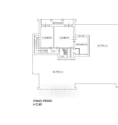
Villa in vendita Via Enrico Berlinguer , Sant'Agata Bolognese
Salva
Casa.it
1/21
  • Street View
  • Map