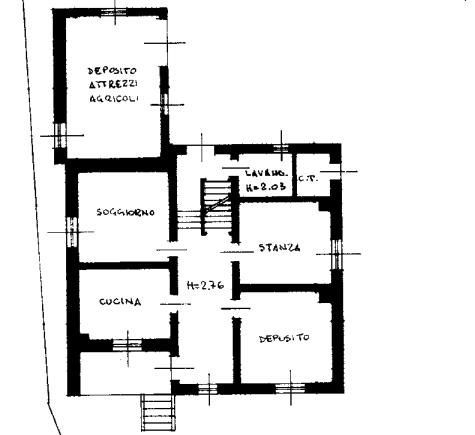
Villa in vendita Via Pietro Zorutti 41, Gemona del Friuli
Salva
Casa.it
1/23
  • Street View
  • Map