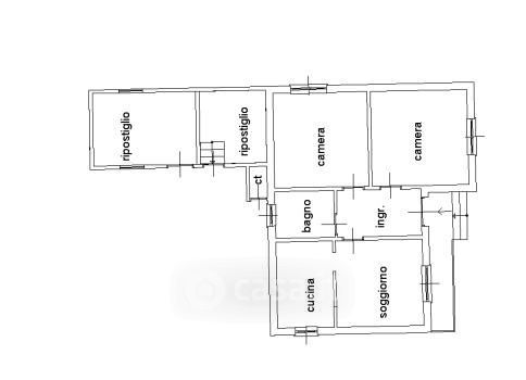
Villa in vendita Via delle Peschiere 22, Pocenia
Salva
Casa.it
1/7
  • Street View
  • Map