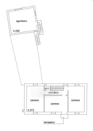
Villa in vendita Via Cristallo 30, Premariacco
Salva
Casa.it
1/23
  • Street View
  • Map