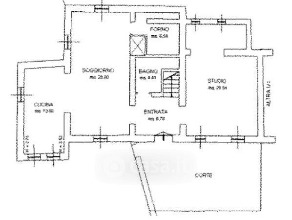
Villa in vendita Via Pordenone 71, San Vito al Tagliamento
Salva
Casa.it
1/26
  • Street View
  • Map