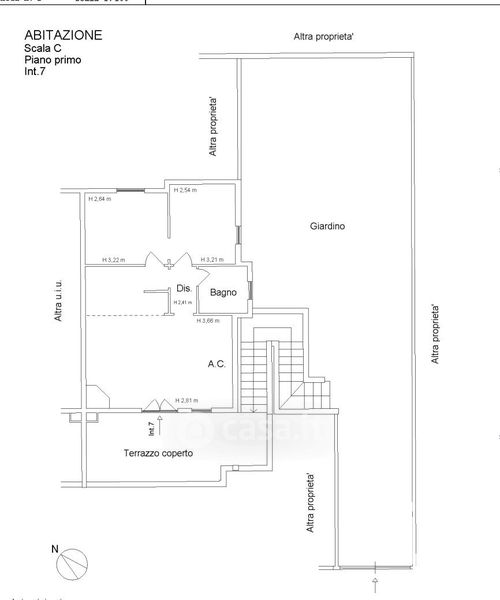
Villa in vendita Via delle Kenzie , Anzio
Salva
Casa.it
1/26
  • Street View
  • Map