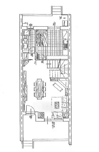
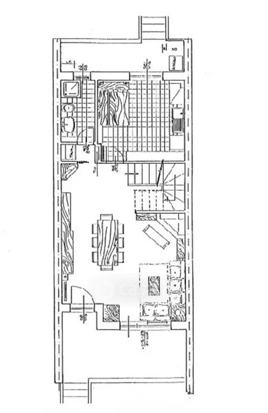
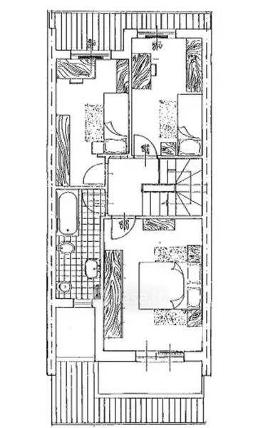
Villa in vendita Via Canapine Superiore , Aquino
Salva
Casa.it
1/32
  • Street View
  • Map