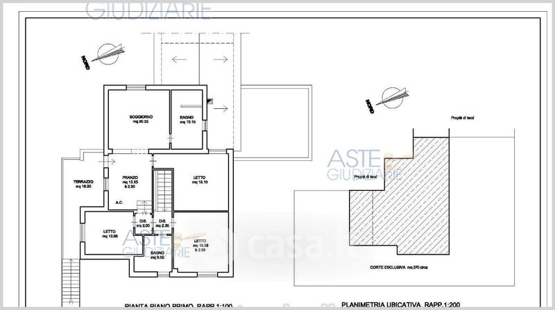
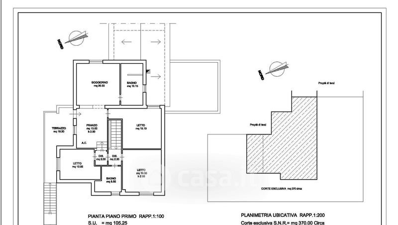
Villa in vendita Via Laurentina , Ardea
Salva
Casa.it
1/42
  • Street View
  • Map