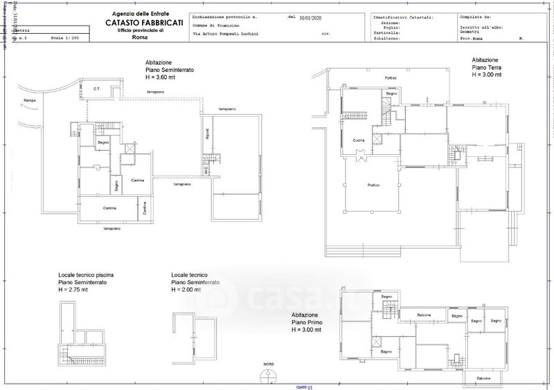
Villa in vendita Via Arturo Pompeati Luchini , Fiumicino
Salva
Casa.it
1/76
  • Street View
  • Map